Vuokrattavan toimitilan tiedot

  • Osoite Vihikari 10, 90440 Kempele
  • Kaupunginosa Oulun lentokentän läheisyydessä
  • Sähköautojen latauspisteet Kyllä
  • Palvelut kiinteistössä Aulapalvelu, lounasravintola, neuvottelutilat, saunaosasto
  • Rakennusvuosi 2000
  • Kerros 4.
  • Pohjapiirros Katso pohjapiirros
  • Kiinteistö Tutustu kiinteistöön
  • Kartta Näytä kartalla

Ota yhteyttä

Kaikissa toimitilojen vuokraukseen liittyvissä asioissa sinua palvelee Sagaxin vuokraustiimi!

010 3200 320
vuokraus@sagax.fi

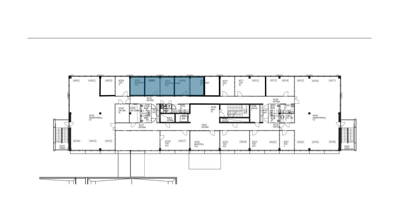
Vuokrattava toimisto 90 m²,  Vihikari 10, Kempele

Vuokrattavana erinomaista toimistoa. Toimitila koostuu 4. kerroksessa sijaitsevista toimistoista ja tilat ovat jaettavissa käyttäjän tarpeiden mukaan.

Kohteen sijainti on loistava lentokentän ja kattavien palveluiden läheisyydessä. Kiinteistöltä löytyy myös hyvät pysäköintimahdollisuudet. Kiinteistössä aulapalvelu ,lounasravintola ja neuvottelutilat saunaosastoineen.

Tutustu kaikkiin vapaisiin toimitiloihin: sagaxtilat.fi/toimitilat

 

Avaa kartta

Haluan lisätietoja toimitilasta

Kenttä on validointitarkoituksiin ja tulee jättää koskemattomaksi.

Sagaxin vuokraustiimi

010 3200 320
vuokraus@sagax.fi

Vuokraustiimimme palvelee

010 3200 320

vuokraus@sagax.fi

Kaikki yhteystiedot

Siirry takaisin sivun alkuun