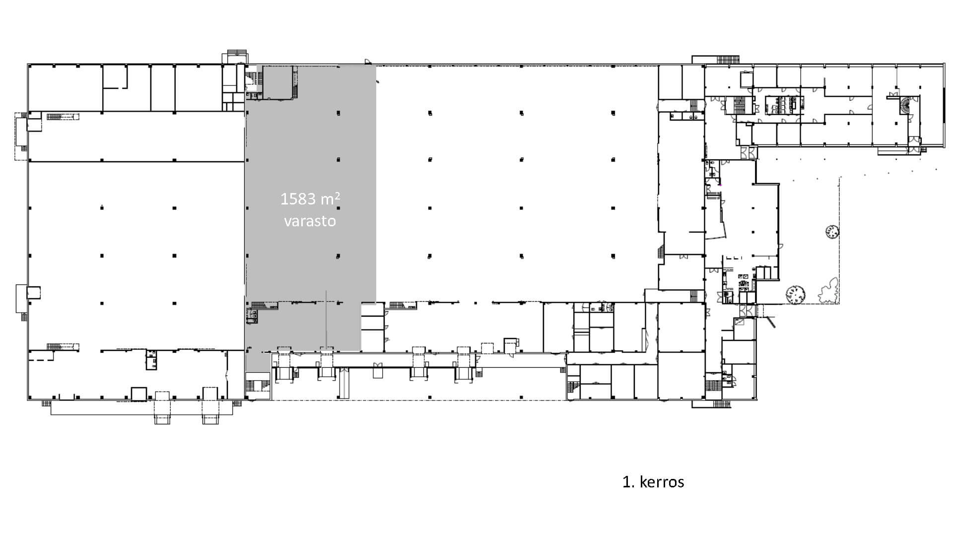
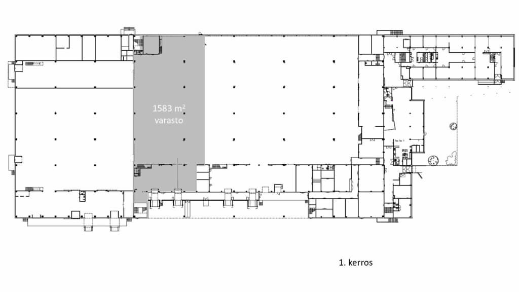
Kohde Tuotanto- / varasto- ja toimistotila 2300 m² Helsinki Konala | Ruosilantie 14 | Sagax Autohuoltotila 2100 m², Muonamiehentie 12 Kiinteistö 1870 m², Hakakalliontie 7, Hyvinkää Kiinteistö 3600 m², Rydöntie 7, Turku Liiketila 2016 m² Vantaa Tammisto | Sähkötie 10 | Sagax Liiketila 735 m² Linnakallio Pirkkala | Autokeskuksentie 12 | Sagax Myymälä-, varasto- ja tuotantotila 2078 m² Pirkkala Vähä-Vaitti | Jasperintie 310 B | Sagax Myymälä-/varastotila 632 m² Helsinki Malmi | Hyttitie 8 | Sagax Toimisto / kylmäkatos 365 m², Kuormaajantie 26, Jyväskylä Toimisto 100 m², Juhanilantie 4 Toimisto 1000 m², Ruosilantie 18 Toimisto 118 m², Ristipellontie 16 Toimisto 120 m² Espoo Kivenlahti | Tillinmäentie 1| Sagax Toimisto 130 m², Juhanilantie 4 Toimisto 132 m² Vantaa Itä-Hakkila | Pavintie 3-7 | Sagax Toimisto 137 m², Sarkatie 2 Toimisto 1440 m², Salvesenintie 6, Jyväskylä Toimisto 147 m², Sarkatie 2 Toimisto 1612 m² Turku Oriketo | Kuormakatu 17 | Sagax Toimisto 180 m² Vantaa Koivuvaara | Koivuvaarankuja 2 | Sagax Toimisto 180 m², Ruosilantie 14 Toimisto 180 m², Tikkurilantie 146 Toimisto 181 m² Helsinki Konala | Ruosilantie 1 | Sagax Toimisto 200 m², Hautalankatu 19, Tampere Toimisto 22 m², Ruosilantie 14 Toimisto 2330 m² Helsinki Konala | Malminkartanonkuja 4 | Sagax Toimisto 260 m² Pirkkala Linnakallio | Autokeskuksentie 16 | Sagax Toimisto 299 m², Vihikari 10, Kempele Toimisto 300 m², Onkapannu 3, Jyväskylä Toimisto 301 m² Vantaa Pakkala |Tulkintie 29 | Sagax Toimisto 337 m², Trukkikuja 1 Toimisto 430 m², Ruosilantie 14 Toimisto 432 m² Mänkimiehentie 4 Toimisto 44,5 m², Ristipellontie 16 Toimisto 456 m², Ansatie 5 Toimisto 46 m² Pirkkala Linnakallio | Autokeskuksentie 16 | Sagax Toimisto 469 m², Tikkurilantie 146 Toimisto 486 m², Niittytie 13, Vantaa Toimisto 492 m², Vihikari 10, Kempele Toimisto 522 m², Koivuvaarankuja 2 (Ärrävaara) Toimisto 550 m², Patamäenkatu 7, Tampere Toimisto 555 m², Kempeleentie 9, Oulu Toimisto 560 m² Helsinki Konala | Ristipellontie 16 | Sagax Toimisto 57 m² Kempele | Vihikari 10 | Sagax Toimisto 595 m², Uurastajankatu 3 Toimisto 60 m², Ristipellontie 17 Toimisto 680 m², Tikkurilantie 146 Toimisto 686 m² Vantaa Aviapolis | Ansatie 5 | Sagax Toimisto 69 m² Turku Länsikeskus | Postikatu 3 | Sagax Toimisto 754 m², Ruosilantie 14 Toimisto 80 m², Punasillantie 33 A, Muurame Toimisto/varasto 291 m², Koivuvaarankuja 2 (Ärrävaara) Toimisto/varasto 305 m², Koivuvaarankuja 2 (Ärrävaara) Toimistoa alkaen 66 m² Tillinmäentie 1 Tuotanto / autokorjaamo 423 m², Uhrilähteenkatu 8, Turku Tuotanto / toimisto 490 m², Koivuhaankuja 1, Vantaa Tuotanto / varasto 237 m², Moreenikuja 2, Oulu Tuotanto / varasto ja toimisto 243 m², Taivaltie 4 Tuotanto 70 m² Turku Länsikeskus | Uhrilähteenkatu 8 | Sagax Tuotanto- /kellarivarastotilaa 820 m², Onkapannu 3, Jyväskylä Tuotanto- ja toimistotila 587 m² Espoo Koskelo | Koskelonkuja 1 B | Sagax Tuotanto-/myymälätila 188 m² Raisio Kuninkoja | Kuninkaanväylä 35 B | Sagax Tuotanto-/toimistotila 594 m² Vantaa Koivuvaara | Koivuvaarankuja 2 | Sagax Tuotanto-/toimistotila 8632 m² Vantaa Koivuvaara | Koivuvaarankuja 2 | Sagax Varasto / halli 3550 m², Paakarlantie 3, Turku Varasto / tuotanto 1000 m², Vesalantie 14 Varasto / tuotanto 245 m², Kuninkaanväylä 35, Raisio Varasto / tuotanto 254 m², Vihikari 10, Kempele Varasto 100 m², Tikkurilantie 146 Varasto 11 m², Vihikari 10, Kempele Varasto 1196 m², Sähkötie 8 Varasto 121,5 m², Moreenikuja 2, Oulu Varasto 1568 m² Helsinki Suutarila | Valokaari 8 | Sagax Varasto 2395 m², Lasikaari 1 Varasto 2687 m² Vantaa Aviapolis | Ansatie 4 | Sagax Varasto 326 m², Turkkirata 23-25 Varasto 394 m² Vantaa Tuupakka | Juhanilantie 4 | Sagax Varasto 403 m², Autokeskuksentie 16, Pirkkala Varasto 4324 m² Vantaa Pakkala | Tulkintie 29 | Sagax Varasto 752 m², Lasikaari 1 Varasto 798 m² Vantaa Koivuhaka | Koivuhaankuja 1 |Sagax Varasto 923 m², Valokaari 8 Varasto-, tuotanto- ja toimistotila 1030 m² Pirkkala Vähä-Vaitti | Jasperintie 334 C | Sagax Varasto-, tuotanto- ja toimistotila 1118 m², Jasperintie 334 B Varasto-, tuotanto- ja toimistotila 2143 m² Pirkkala Vähä-Vaitti | Jasperintie 334 A | Sagax Varasto-/hallitila 250 m² Muurame Hautalanmäki | Punasillantie 31 A | Sagax Varasto-/tuotantotila 10 432 m² Espoo Kauklahti | Mänkimiehentie 4 | Sagax Varasto-/tuotantotila 1252 m² Tampere Linnainmaa | Hautalankatu 20 | Sagax Varasto-/tuotantotila 1751 m² Vantaa Viinikkala | Tikkurilantie 146 | Sagax Varasto-/tuotantotila 195 m² Espoo Koskelo | Koskelonkuja 1 A | Sagax Varasto-/tuotantotila 213 m² Pirkkala Vähä-Vaitti |Vesalantie 14 | Sagax Varasto-/tuotantotila 2141 m² Espoo Kauklahti | Mänkimiehentie 4 | Sagax Varasto-/tuotantotila 2331 m², Savelankatu 3, Jyväskylä Varasto-/tuotantotila 5025 m² Turku Urusvuori | Urusvuorenkatu 3 | Sagax Varasto-/tuotantotila 650 m², Puulaakintie 8, Jyväskylä Varasto/liiketila 450 m², Vahdontie 30, Turku Varasto/toimisto/myymälä 3230 m², Kiilaniityntie 1