Vuokrattavan toimitilan tiedot

  • Osoite Jasperintie 310 B, 33960 Pirkkala
  • Kaupunginosa Vähä-Vaitti
  • Sähköautojen latauspisteet Kyllä
  • Rakennusvuosi 2014
  • Kerros 1. - 2.
  • Nosto-ovi 2 kpl
  • Kiinteistö Tutustu kiinteistöön
  • Kartta Näytä kartalla

Ota yhteyttä

Kaikissa toimitilojen vuokraukseen liittyvissä asioissa sinua palvelee Sagaxin vuokraustiimi!

010 3200 320
vuokraus@sagax.fi

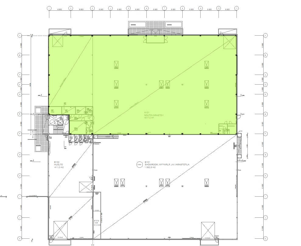
Vuokrattava myymälä-, varasto- ja tuotantotila 2078 m², Jasperintie 310 B, Pirkkala

Vuokrattavana monikäyttöistä myymälätilaa, joka soveltuu myös varastointiin ja tuotantoon. Toimitila vapautuu syksyllä 2026.

Toimitilassa on kaksi nosto-ovea.

Kohteen sijainti on loistava ja monipuolinen lounasravintola sijaitsee viereisessä rakennuksessa.

Tutustu kaikkiin vapaisiin toimitiloihin: sagaxtilat.fi/toimitilat

 

 

Avaa kartta

Katso myös nämä

Varasto 2395 m², Lasikaari 1

Lasikaari 1, 33960

2395 m²

Tuotanto, Varasto

Tutustu tilaan

Vuokrattava toimitila Pirkkala

Varasto-, tuotanto- ja toimistotila 1118 m², Jasperintie 334 B

Jasperintie 334 B, 33960

1118 m²

Toimisto, Tuotanto, Varasto

Tutustu tilaan

Varasto / tuotanto 1000 m², Vesalantie 14

Vesalantie 14, 33960

998 m²

Tuotanto, Varasto

Tutustu tilaan

Haluan lisätietoja toimitilasta

Kenttä on validointitarkoituksiin ja tulee jättää koskemattomaksi.

Sagaxin vuokraustiimi

010 3200 320
vuokraus@sagax.fi

Vuokraustiimimme palvelee

010 3200 320

vuokraus@sagax.fi

Kaikki yhteystiedot

Siirry takaisin sivun alkuun