Vuokrattavan toimitilan tiedot

  • Osoite Rydöntie 7, 20360 Turku
  • Kaupunginosa Urusvuori
  • Sähköautojen latauspisteet Ei
  • Rakennusvuosi 1980
  • Kerros 1.
  • Siltanosturi Kyllä, 2 kpl
  • Nosto-ovi Kyllä
  • Kiinteistö Tutustu kiinteistöön
  • Kartta Näytä kartalla

Ota yhteyttä

Kaikissa toimitilojen vuokraukseen liittyvissä asioissa sinua palvelee Sagaxin vuokraustiimi!

010 3200 320
vuokraus@sagax.fi

Toimitilat Turku
vuokrataan kokonainen kiinteistö 3600 m²

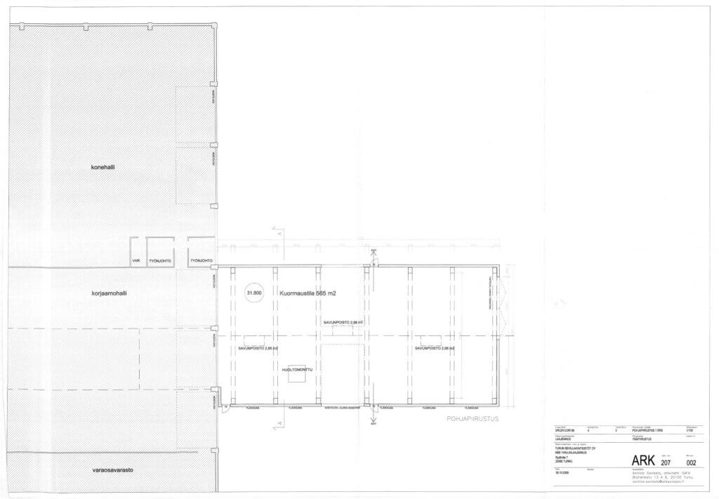
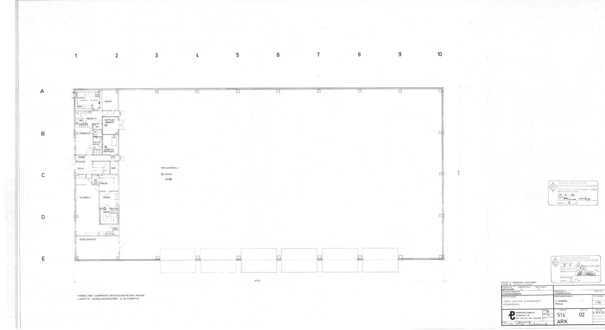
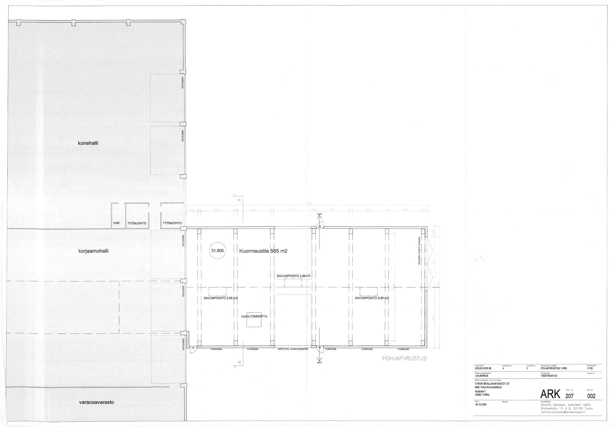
Kokonainen kiinteistö mahdollisesti vapautumassa vuokrattavaksi. Kohde sijaitsee aivan lentokentän vieressä ja sijainti on erinomainen joka suuntaan. Toimitilat ovat suunniteltu ns. konepajatiloiksi, joissa lisänä siistit toimistotilat. Kohde koostuu vanhasta halliosasta sekä laajennusosasta.

Uuteen laajennusosaan on sisäänajo rekalla 7,7 metriä korkeista taiteovista. Laajennusosan sivuilla on saman korkuiset ovet, jotka mahdollistavat läpiajettavuuden.

Muut nosto-ovet ovat 4,5 metriä korkeita.

Tilojen korkeudet:

Laajennusosan vapaa korkeus: 9,75 m
Vanhan halliosan vapaa korkeus: 5,5 m

Halli soveltuu monipuoliseen käyttöön. Kaikki sisäänajot ovat maan tasolta, eikä kohteessa ole lastauslaitureita.

Vahvassa halliosassa on kaksi 5 tonnin siltanosturia. Laajennushallissa on valmiudet suurille siltanostureille.

Kohteen sijainti on erinomainen, aivan Tampereen moottoritien ja Turun ohitustien vieressä. Ohitustieltä on suora yhteys Helsingin sekä Pori–Rauma-suuntiin.  Liikenneyhteydet ovat hyvät myös julkisilla kulkuvälineillä: kaupungin linja 1 kulkee noin 50 metrin päästä.

Kiinteistön tiedot

Rydöntie 7

Kohteen sijainti on erinomainen, aivan Tampereen moottoritien ja Turun ohitustien vieressä. Ohitustieltä on suora yhteys Helsingin sekä Pori–Rauma-suuntiin.  Liikenneyhteydet ovat hyvät myös julkisilla kulkuvälineillä: kaupungin linja 1 kulkee noin 50 metrin päästä.

Lue lisää kiinteistöstä ja katso kaikki vapaat tilat

Avaa kartta

Haluan lisätietoja toimitilasta

Kenttä on validointitarkoituksiin ja tulee jättää koskemattomaksi.

Sagaxin vuokraustiimi

010 3200 320
vuokraus@sagax.fi

Vuokraustiimimme palvelee

010 3200 320

vuokraus@sagax.fi

Kaikki yhteystiedot

Siirry takaisin sivun alkuun